Doğa ve Çevre ile Uyumlu Yeni Nesil Teknolojik Yapılar...

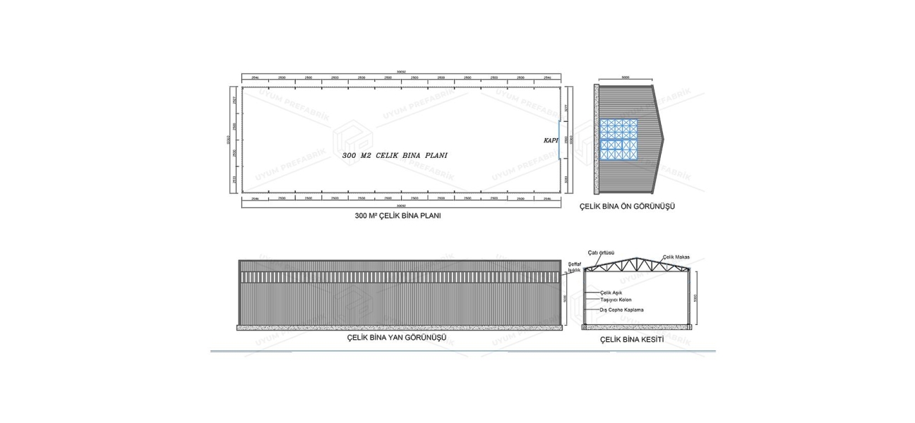
300m² Çelik Hangar Binası

Dayanıklılığı ve geniş kullanım alanı ile öne çıkan çelik hangar binaları, sanayi, tarım, depo, garaj, atölye ve üretim alanları için ideal çözümler sunar. Modüler yapısı sayesinde ihtiyaca göre farklı ebatlarda üretilebilen hangarlarımız, sağlamlığı ile uzun yıllar sorunsuz kullanım sağlar.

Fikirlerinizi ve Projelerinizi Birlikte Şekillendirelim

Aklınıza takılan tüm konularda, görüş, önerilerinizi bizlere iletebilirsiniz. Tüm iletişim mesajlarınız dikkatle okunup en kısa sürede tarafımızca cevaplanmaktadır. Daha verimli çalışmalar yapabilmemiz için; yapmayı düşündüğünüz projeleriniz varsa lütfen detaylarıyla birlikte aşağıdaki formdan veya adresinden bize gönderin.

Hızlı Fiyat Alın !

Türkiye'de Prefabrik Ev ve Yapılarda 1 Numara - Uyum Prefabrik