New Generation Technological Structures Compatible with Nature and Environment

177m² Hünkar Two-Storey Prefabricated House

PRODUCT DESCRIPTION

Product NameHünkar
177m²
NUMBER OF FLOORS2
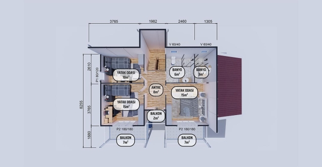
NUMBER OF ROOMS3+1
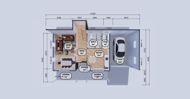
LIVING ROOM25m²
BEDROOM10-15-15m² (3 units)
KITCHEN15m²
BATHROOM3-6-6m² (3 units)
GARAGE22m²
STORAGE3m²
HALLWAY8-8m² (2 units)
VERANDA2-7-7m² (3 units)
BALCONY2-7-7m² (3 units)

 

Prefabricated houses are produced with fire-resistant A1 class non-combustible materials and are economical.

Thermal balance is supported with PVC windows. Our houses are delivered to customers with calculations suitable for each region.
Projects are revised to bring our customers' requests to life.

Building Height250 cm
Interior Wall6 cm – 10 cm (Optional)
Interior DoorAmerican Door
WindowsWhite PVC Window
Electrical InstallationConcealed Wiring
Interior PaintPlastic Interior Paint
Exterior Walls10 cm
Exterior DoorSteel Door
Balcony DoorWhite PVC Door
Roof CoveringPainted Galvanized Sheet, (Optional) Metal Tiles, Shingle Covering
Sanitary InstallationConcealed Wiring

Exterior Paint

Silicone Exterior Paint

 

  1. Assembly of all building elements (wall panels and connection components)
  2. Installation of exterior door (Steel Door) and interior doors (American Door)
  3. Installation of all windows, including double-glazing
  4. Electrical system: all materials and implementation (outlets, switches, circuit breakers, lighting fixtures)
  5. Plumbing system: all materials and implementation (wastewater and clean water piping)
  6. Supply of sanitary ware (toilet, sink, shower tray, faucets), excluding installation, if specified in the project
  7. Complete ceiling cladding, ceiling insulation, and roof covering
  8. Interior & Exterior ceiling, metal parts painting and priming, and silicone sealing
  9. Loading of materials onto vehicles provided by the buyer is the responsibility of the seller
  1. Concrete foundation and all types of excavation work
  2. Floor and wall finishing (screed, ceramic, tile, carpet, etc.)
  3. Construction permits required for building setup
  4. Transportation, transport insurance, and, if necessary, crane and scaffold supply
  5. External utility connections (electricity, grounding, wastewater and clean water, etc.)
  6. Heating and cooling systems (radiator, air conditioning, etc.)
  7. Kitchen upper and lower cabinets, and bathroom cabinets
  8. Telephone, TV, Computer, UPS, Data wiring, and fixtures
  9. Electricity supply needed during the installation
  10. Accommodation and meal costs of the installation team for out-of-town projects
  11. Protection of materials on-site against theft

Let's Shape Your Ideas and Projects Together

You can send us your opinions and suggestions on any issue you have in mind. All your communication messages are read carefully and answered by us as soon as possible. In order for us to work more efficiently; If you have projects you are considering doing, please send them to us using the form below or at the address below, along with their details.

Get a Quick Price!

Number 1 in Prefabricated Houses and Buildings in Turkey : Uyum Prefabrik